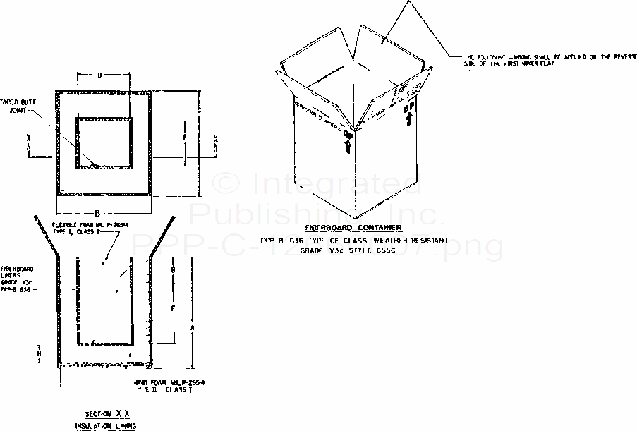
PPP-C-1266 Container, Thermal, Shipping, For Medical Material Requiring Controlled Temperature RangesThis specification covers the design criteria and test procedures for eight sizes of containers suitable for the shipment and storage of medical material, specimens, and biologicals requiring continuous chill or freeze environment.