
MIL-DTL-4710E
NOTES:
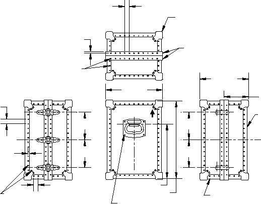
BODY PANELS .250 PLYWOOD. BODY
DIMENSIONS DO NOT INCLUDE
BINDING AND REINFORCEMENTS.
2.000 MAX
DIMENSIONS IN INCHES. UNLESS
(TYP)
OTHERWISE SPECIFIED TOLERANCES:
CORNER .059 TO .067
DECIMALS ±.010.
THICK STEEL, 8 REQ'D.
HANDLE - 44B9598, 2 REQUIRED
(1 EACH SIDE).
.250 (TYP)
CLOSE FIT BUTT JOINTS
TYPICAL AT THIS LOCATION.
Ø.141 TUBULAR OR
11.500
SOLID RIVETS
BODY
AROUND BODY
15.000
L
C
BODY
5.750
2.000 MAX.
FRAGILE
CASE, LEFT
THIS END UP
(TYP)
HALF
7.000
7.000
L
C
L
C
7.000
7.000
L
C
.250 TYP.
1.250 MAX. (TYP)
14.500
20.500
Ø.156
CASE, RIGHT HALF
BIFURCATED RIVETS.
TUBULAR OR
SOLID RIVETS,
STEEL WASHER OTHER SIDE
CASE
FIGURE 1
10
For Parts Inquires submit RFQ to Parts Hangar, Inc.
© Copyright 2015 Integrated Publishing, Inc.
A Service Disabled Veteran Owned Small Business