
MIL-DTL-4710E
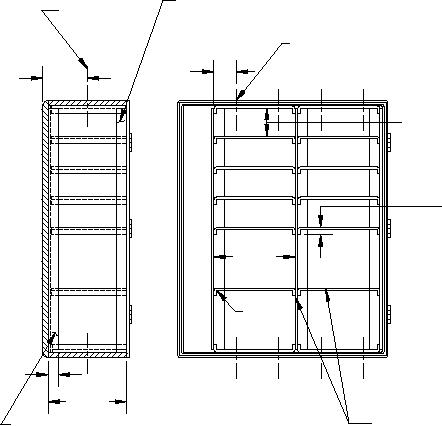
STRIP - PARTITION, .060 THICK STEEL,
RIVET
.750 WIDE X 19.625 LONG
C (REF)
L
3 REQUIRED.
Ø.141 TUBULAR RIVETS,
8 REQUIRED (4 TOP AND
1.625
4 BOTTOM).
2.875
TYP.
8 SPACES EQUAL
WITHIN .031, OMIT
2 PARTITIONS
EACH ROW AS
SHOWN
.750 TYP.
6.375
+.062
R .031
+.031
.875 (REF.)
5.250
FORWARD EDGES
ANGLE PARTITION,
FLUSH WITH
.060 THICK STEEL,
EACH OTHER.
.875 X 19.625 LONG,
3 REQUIRED.
PARTITIONS CASE NO. 2
RIGHT HALF OF CASE SHOWN
LEFT HALF OF CASE OPPOSITE
FIGURE 6
15
For Parts Inquires submit RFQ to Parts Hangar, Inc.
© Copyright 2015 Integrated Publishing, Inc.
A Service Disabled Veteran Owned Small Business